NATUR PUR: Eigentumswohnung in Randlage von KA-Knielingen mit Balkon und Garage zu veräußern
Angeboten wird Ihnen hier eine derzeit noch vermietete Eigentumswohnung in…
Kauf
110,000€
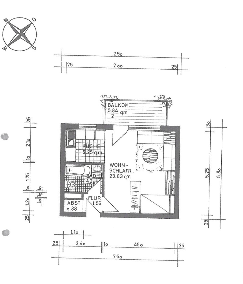
Dieses 1-Zimmer-Apartment befindet sich im 5. Obergeschoss eines gepflegten Mehrfamilienhauses aus dem Jahr 1975 und bietet auf ca. 37 m² Wohnfläche eine funktionale und gut nutzbare Raumaufteilung.
Der helle Wohn- und Schlafbereich bildet das Herzstück der Wohnung und bietet ausreichend Platz für Wohnen, Schlafen und Arbeiten. Von hier aus gelangt man direkt auf den Balkon, der den Wohnraum sinnvoll erweitert und für zusätzlichen Komfort sorgt. Die Kombination aus Laminat- und Fliesenboden unterstreicht den praktischen Charakter der Wohnung und ist zugleich pflegeleicht.
Die Beheizung erfolgt über eine zentrale Fernwärmeheizung, was eine zuverlässige und komfortable Wärmeversorgung gewährleistet. Ein eigenes Kellerabteil gehört ebenfalls zur Wohnung und bietet zusätzlichen, praktischen Stauraum.
Abgerundet wird dieses Angebot durch eine zur Wohnung gehörende Garage, die sowohl für Eigennutzer als auch für Mieter einen deutlichen Mehrwert darstellt.
Die Wohnung ist aktuell vermietet und erzielt jährliche Mieteinnahmen in Höhe von 4.968,00 €. Damit eignet sich dieses Objekt insbesondere für Kapitalanleger, die eine kompakte und gut vermietbare Einheit suchen.
Interesse geweckt?
Wir freuen uns auf Ihre Anfrage.
Die Wohnung befindet sich im beliebten Karlsruher Stadtteil Neureut, in ruhiger und zugleich gut angebundener Wohnlage. Die Umgebung ist geprägt von gepflegten Mehrfamilienhäusern und bietet ein angenehmes, gewachsenes Wohnumfeld – ideal für Singles, Pendler oder Studierende.
Einkaufsmöglichkeiten für den täglichen Bedarf, Bäckereien, Apotheken sowie verschiedene Dienstleister befinden sich in der näheren Umgebung und sind bequem erreichbar. Auch gastronomische Angebote sowie Freizeit- und Sportmöglichkeiten sind in Neureut vielfältig vorhanden und sorgen für eine hohe Lebensqualität.
Die Anbindung an den öffentlichen Nahverkehr ist sehr gut: Über die nahegelegene Stadtbahn gelangen Sie in kurzer Zeit direkt in die Karlsruher Innenstadt sowie zum KIT und weiteren wichtigen Anlaufpunkten. Auch mit dem Auto besteht durch die gute Anbindung an die B36 eine schnelle Verbindung in die Innenstadt und in die umliegenden Regionen.
Darüber hinaus bietet die Lage durch nahegelegene Grünflächen und Spazierwege eine angenehme Möglichkeit zur Erholung im Alltag. Die Kombination aus ruhigem Wohnen, guter Infrastruktur und schneller Erreichbarkeit der Karlsruher Innenstadt macht diesen Standort besonders attraktiv – sowohl für Eigennutzer als auch für Kapitalanleger.
Wir arbeiten bei diesem Objekt ausschließlich auf Basis eines Erfolgshonorars, das sich wie folgt zusammensetzt: Der Käufer zahlt im Erfolgsfall an die Firma Pell-Rich Immobilien eine Maklerprovision in Höhe von 3,57% inkl. der gesetzl. MwSt. der Kaufsumme.
Die Provision versteht sich freibleibend einer Provision der anderen Vertragsseite.
Die Provision ist fällig bei notarieller Beurkundung des Kaufobjektes.
Es gelten die angehängten Geschäftsbedingungen, die Sie sich auch von unserer Homepage entnehmen können.
Ein Zwischenverkauf bleibt vorbehalten.
Für die Richtigkeit der gemachten Angaben können wir keine Gewähr übernehmen.
Die Informationen in der vorliegenden Form haben wir vom Eigentümer /Auftraggeber bzw. Hausverwalter erhalten und in diesem Angebot weitergegeben, ohne Haftung für die Richtigkeit und Vollständigkeit.
Finanzierungsfragen? - Für Ihre individuelle und nach Ihren Bedürfnissen ausgerichtete Immobilienfinanzierung können wir Ihnen gerne behilflich sein, da Pell-Rich Immobilien Partner von Interhyp ist.
Alle weiteren Infos zu aktuellen Konditionen oder zur Beantragung eines Finanzierungspasses und Terminvereinbarung mit Ihrem Finanzierungsexperten Herrn Burkart, finden Sie hier:
https://www.pell-rich.de/immobilienfinanzierung/
Weitere Angebote unserer Firma finden Sie unter: www.pell-rich.de/wohnen
- Baujahr 1975
- 1-Zimmer Apartment
- 5.OG
- ca. 37m² Wohnfläche
- Garage
- 4.968,00€ Mieteinnahmen p.A.
- Fernwärme Zentralheizung
- Laminat- und Fliesenboden
- Kellerabteil
- Balkon
ausgebildeter Immobilienkaufmann (IHK), Vertrieb Wohn-und Gewerbeimmobilien
Angeboten wird Ihnen hier eine derzeit noch vermietete Eigentumswohnung in…
Diese gepflegte Eigentumswohnung befindet sich im 1. Obergeschoss eines im…
Dieses 1-Zimmer-Apartment befindet sich im 5. Obergeschoss eines gepflegten Mehrfamilienhauses…
Sie müssen den Inhalt von reCAPTCHA laden, um das Formular abzuschicken. Bitte beachten Sie, dass dabei Daten mit Drittanbietern ausgetauscht werden.
Mehr InformationenSie sehen gerade einen Platzhalterinhalt von Turnstile. Um auf den eigentlichen Inhalt zuzugreifen, klicken Sie auf die Schaltfläche unten. Bitte beachten Sie, dass dabei Daten an Drittanbieter weitergegeben werden.
Mehr InformationenSie sehen gerade einen Platzhalterinhalt von Facebook. Um auf den eigentlichen Inhalt zuzugreifen, klicken Sie auf die Schaltfläche unten. Bitte beachten Sie, dass dabei Daten an Drittanbieter weitergegeben werden.
Mehr InformationenSie sehen gerade einen Platzhalterinhalt von Instagram. Um auf den eigentlichen Inhalt zuzugreifen, klicken Sie auf die Schaltfläche unten. Bitte beachten Sie, dass dabei Daten an Drittanbieter weitergegeben werden.
Mehr InformationenSie sehen gerade einen Platzhalterinhalt von X. Um auf den eigentlichen Inhalt zuzugreifen, klicken Sie auf die Schaltfläche unten. Bitte beachten Sie, dass dabei Daten an Drittanbieter weitergegeben werden.
Mehr Informationen